SOLD
#L27393085

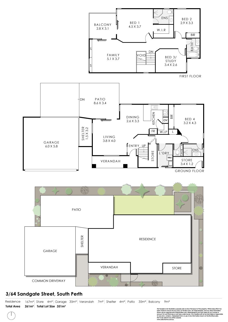
3/64 Sandgate Street, South Perth WA

NO STRATA FEES – 1 OF ONLY 3!

You can’t go wrong with this lovely rear 4 x 3 townhouse in a small complex of three with double carport with roller door.

Upon entry is the kitchen, living and dining area with lots of windows allowing for an abundance of natural light and breeze. The sliding door from the living room opens onto the paved / covered patio outdoor entertaining area.

The kitchen, which features a gas cooktop, wall oven and built in pantry, looks out to the dining / living room and patio.

The downstairs second master bedroom has a built in robe behind mirrored sliding doors and there is an ensuite.

There is a downstairs powder room and linen cupboard.

The laundry has side access to the outdoor washing line.

Upstairs is a lovely second living room with an outlook to the tree and roof tops. The balcony is large and accessible from both the living and master bedroom.

The master bedroom is large with a walk in robe, ensuite and balcony access.

Bedrooms 3 and 4 also upstairs are situated next to the bathroom which has a shower / bath , vanity and WC.

This bright and airy, easy-care townhouse is currently is tenanted which makes for a great investment or low maintenance down-sizer. Located in a brilliant location, opposite South Perth Council and Library, situated next to Ernest Johnson Oval, and The Como Bowls Club. A short walk away is the local iconic The Como. Easy access to transport, close to amenities such as local GP’s, cafes, shops and more.

Currently leased at $880 per week until 30/01/2025.

Council Rates: $2,773.25 pa
Water Rates: $1,437.95 pa
Strata Levy: Insurance only

PROPERTY SUMMARY
Bedrooms 4
Bathrooms 3
Garages 2
INSPECTION TIMES
No scheduled inspection.
LOCATION
AGENTS

We cover properties in all price ranges

You may also like these properties